Heavy-duty Steel Roller Shutters
GLIDEROL Heavy Duty Steel Roller Shutters are available in two types of slats:-
- Plain Slats - Roll-formed in 1.0 mm or 1.2 mm thick galvanized steel. They can be in pre-painted colorbond finish (standard colors), powder coated, or Pvf2 coated finish.
- Alfresco Slats - Roll-formed from 1.0mm or 1.2mm thick galvanized steel with the concave surface pre-punched with 3.3mm diameter perforations. For use where some vision and ventilation is required. Recommended to be in either powder coated or Pvf2 coated.
Technical Data
Drum Assembly
The barrel assembly consists of an extremely rigid steel tube sheathed over a pair of drive shaft assemblies fitted to heavy duty bearing sets and supported at both ends by steel head plates. The drive shaft is a solid polished-steel round bar incorporating key ways to accept the drive sprocket. Corresponding to the size of the shutter, the head plates are either 6mm or 8mm thick with shafts of either 38mm or 50mm diameter.
Door Curtain
Material
The door curtain is made up of sturdily designed galvanized steel scroll-profiled interlocking slats, 75mm high x 1.0mm or 1.2mm thick. These slats are also available with 3mm diameter perforations pre-punched on the concave surface.
End Clips
Steel end clips are secured to alternate slats to prevent lateral movements.
Wind-lock Clips
Where specified for external doors, steel wind-lock clips may be provided at about 4-slat intervals to improve the wind load capability of the shutter.
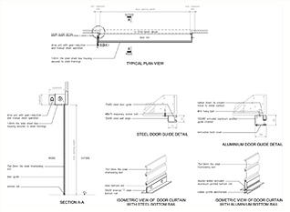
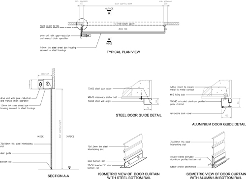
Bottom rail
The bottom rail is an inverted 'T' formed by 2 lengths of 50mm x 50mm steel angle iron secured back-to-back through a scrolled bottom slat. For wider doors where further rigidity is needed, a double-walled extruded aluminum profiled bottom rail of overall 20mm thick is available.
Bottom Seal
The bottom rail is fitted with a finned PVC bottom seal that will seal against the floor when the door is fully closed. An astragal tube weather seal is available as an option where a safety edge or tighter weather sealing is required.
Safety Edge
A pneumatic bottom safety edge is available as an option. This consists of a pneumatic switch fitted to the bottom rail, connected to the astragal weather seal and wired to the motor controls. Both ends of the weather seal is capped, such that it forms an air tube. Whenever, the closing door is obstructed, the astragal tube will be compressed, forcing out a tiny gust of air to activate the pneumatic switch. The switch will in turn activate the motor operator to instantly stop the downward travel of the shutter.
Door Guides
Roll-formed galvanized steel guide channel; of overall size 65mm x 75mm deep. The channels are secured to a continuous length of wall angle size 50mm x 50mm, spanning the entire height of the shutter and bolted to the walls of the door opening.
For shutters with safety edge, the guides shall be a heavy-duty extruded aluminum guide channel of overall size 90mm x 100 mm deep. It has a built-in cavity to accommodate and conceal the cable chain of the safety edge system, thus eliminating the need for an exposed trailing spiral cable that may pose a safety hazard. Rubber seals are fitted to the lips of the guides to prevent metal-to-metal contact, thus ensuring a smooth and quiet operation. It also features a removable guide cover to facilitate easy maintenance.
Door Operation
Motor Drive
The drive unit consists of a suitably-sized linear drive motor operator mounted parallel to and behind the door roll. It has an integrated gearbox and a chain-operated sheave wheel for manual operation in case of power failure. The control box is lockable, housing a set of push buttons for 'Up', 'Down' and 'Stop' operations. The door travel shall automatically stop at the desired upper and lower limits via adjustable limit switches.
For shutters without a safety edge, the 'Down' button shall require the operator to push and hold when closing the shutter. This is to ensure the closing operation is being supervised. Upon sighting an obstruction, the operator will automatically release the button by reflex. This will instantly stop the downward travel of the shutter and prevent accidents.
Power supply shall be either Single Phase 230V x 15amp or a 3 Phase 415V x 20amp, depending on the size of the shutter.