Insulated Roller Shutters
Our insulated roller shutters are heavy duty shutters in steel or aluminium, with fire-resistant ceramic fibre infills.
Gliderol Heavy Duty Steel Insulated Roller Shutters
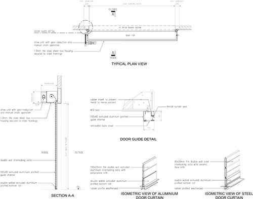
- 80mm x 20mm thick double-walled steel roll-formed cavity slats with ceramic fiber insulation infill
- U Value: 3.25 W/m2°C (calculated on the insulated portion of the slats)
- Available in galvanized, Powder coated or Pvf2 coated finish
Gliderol Heavy Duty Aluminium Insulated Roller Shutters
- 100 x 23mm thick double-walled extruded aluminium cavity slats with expanded polystyrene insulation infill
- U Value: 1.95 W/m2°C (calculated on the insulated portion of the slats)
- Available in mill, Powder coated or Pvf2 coated finish
- Slats available in natural anodized finish for Aluminium Insulated Shutters of up to 6.0m wide
Technical Data
Drum Assembly
The barrel assembly consists of an extremely rigid steel tube sheathed over a pair of drive shaft assemblies fitted to heavy duty bearing sets and supported at both ends by steel head plates. The drive shaft is a solid polished-steel round bar incorporating key ways to accept the drive sprocket. Corresponding to the size of the shutter, the head plates are either 6mm or 8mm thick with shafts of either 38mm or 50mm diameter.
Door Curtain
Material
For Steel Insulated Shutters, the door curtain consists of 80mm x 20mm thick double-walled steel roll-formed cavity slats. The cavity is filled with high purity ceramic fiber blanket insulation material.
For Aluminum Insulated Shutters, the curtain is made up of 100mm x 23mm thick sturdily designed double-walled extruded aluminum flat-faced interlocking slats. The cavity is filled with expanded polystyrene insulation material.
End Clips
For Steel Insulated Shutters - custom profiled steel end clips are secured to every slat at each end.
For Aluminum Insulated Shutters - Nylon end clips are secure to alternate slats.
Wind-lock Clips
Where specified for external doors, steel wind-lock clips may be provided at about 4-slat intervals to improve the wind load capability of the shutter.
Bottom rail
The bottom rail is a single length inverted 'T' double-walled extruded aluminum profile of overall 20mm thick, with the base containing a slot to retain the bottom seal.
Bottom Seal
The bottom rail is fitted with a finned PVC bottom seal that will seal against the floor when the door is fully closed. An astragal tube weather seal is available as an option where a safety edge or tighter weather sealing is required.
Safety Edge
A pneumatic bottom safety edge is available as an option. This consists of a pneumatic switch fitted to the bottom rail, connected to the astragal weather seal and wired to the motor controls. Both ends of the weather seal is capped, such that it forms an air tube. Whenever, the closing door is obstructed, the astragal tube will be compressed, forcing out a tiny gust of air to activate the pneumatic switch. The switch will in turn activate the motor operator to instantly stop the downward travel of the shutter.
Door Guides
The guides shall be a heavy-duty extruded aluminum guide channel of overall size 90mm x 100 mm deep. It has a built-in cavity to accommodate and conceal the cable chain of the safety edge system, thus eliminating the need for an exposed trailing spiral cable that may pose a safety hazard. Rubber seals are fitted to the lips of the guides to seal against the curtain when the shutter is closed. The seals will also prevent metal-to-metal contact, thus ensuring a smooth and quiet operation. The back of the guide channel is removable for easy maintenance.
Door Operation
Motor Drive
The drive unit consists of a suitably-sized linear drive motor operator mounted parallel to and behind the door roll. It has an integrated gearbox and a chain-operated sheave wheel for manual operation in case of power failure. The control box is lockable, housing a set of push buttons for 'Up', 'Down' and 'Stop' operations. The door travel shall automatically stop at the desired upper and lower limits via adjustable limit switches.
For shutters without a safety edge, the 'Down' button shall require the operator to push and hold when closing the shutter. This is to ensure the closing operation is being supervised. Upon sighting an obstruction, the operator will automatically release the button by reflex. This will instantly stop the downward travel of the shutter and prevent accidents.
Power supply shall be either Single Phase 230V x 15amp or a 3 Phase 415V x 20amp, depending on the size of the shutter.