Thermally-insulated Fire Shutter
Model TIFS with Normal Heat Insulation
Conforming to Singapore, UK, America, Australia and Malaysia standards, our Model TIFS with Normal Heat Insulation shutter system has a tested capability of 240 minutes fire integrity. The product has a fire insulation value of seven minutes and a radiation flux of 2. 8 kW/m² at 120 minutes and 4.3 k W/m² at 240 minutes.
Where a shutter is needed for normal use to close an opening leading to an air-conditioned area (or to help keep out the heat), it is usual that such a shutter has thermal insulation properties to reduce energy loss. And when such openings are also required to be fire protected, a common practice is to have another fire shutter installed to the front or back of the insulated shutter. This fire shutter is usually not used under normal circumstances. It is held open all the time and activated only in a fire situation. The TIFS is a cost-effective 2-in-1 solution for such a situation.
| Tested to | BS EN 1634-1, AS 1530.4:2005 and MS 1073:Pt 3:1996 |
| Maximum Size | W 12.0m x Ht 7.0m |
| Tested Rating | Up to 4 hrs Fire Integrity; Fire Insulation Value: 7 minutes |
| Radiation Flux | 2.8 kW/m2 at 120mins, and 4.3 kW/m2 at 240 mins(This value was recorded by a Radiometer placed on the center line of the curtain 3.38 m away from the specimen during the fire test ) |
| U Value | 3.25 W/m2°C (calculated on the insulated portion of the slats) |
Technical Data
Drum Assembly
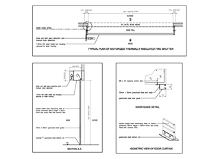
The barrel assembly consists of an extremely rigid steel tube sheathed over a pair of drive shaft assemblies fitted to heavy duty bearing sets and supported at both ends by steel head plates. The drive shaft is a solid polished-steel round bar incorporating key ways to accept the drive sprocket. Corresponding to the size of the shutter, the head plates are either 6mm or 8mm thick with shafts of either 38mm or 50mm diameter.
Door Curtain
Material
The door curtain consists of double-walled cavity interlocking slats overall size 80mm x 20mm thick. The cavity is filled with high purity Ceramic Fibre insulation blanket material.
End Clips
Custom-shaped steel end-clips are secured to each end of every slat to prevent lateral movements.
Bottom rail
The bottom rail is an inverted 'T' formed by 2 lengths of 50mm x 50mm thick steel angles secured back-to-back through an insulated slat.
Bottom Weatherseal
Bottom weather seal is available as an option. This is not commonly available with most fire shutters. We can offer because we have fire tested to demonstrate that our weather seal does not compromise the fire integrity of our shutter.
Door Guides
Roll-formed galvanized steel guide channel of overall size 75mm x 65mm. The channels are secured or welded to a continuous length of wall angle sized 50mm x 50mm thk, spanning the entire height of the shutter and bolted to the walls of the door opening.
Door Operation
Motor Drive
The drive unit consists of a suitably-sized linear drive motor operator mounted parallel to and behind the door roll. It has an integrated gearbox and a chain-operated sheave wheel for manual operation in case of power failure. The control box is lockable, housing a set of push buttons for Up', 'Down' and 'Stop' operations. The door operation shall automatically stop at the desired upper and lower limits via adjustable limit switches.
For safety reasons, the 'DOWN' button shall require the operator to push and hold when closing the shutter. This is to ensure the closing operation is being supervised. Upon sighting an obstruction, the operator will automatically release the push button by reflex. This will instantly stop the downward travel of the shutter and prevent accidents.
Power supply shall be either Single Phase 230V x 15amp or 3 Phase 415V x 20amp, depending on the size of the shutter.
